Opis
Prodaja stanova u izgradnji. Naselje Bjelave ulica: Zlatikusa 17
Opcina Centar Sarajevo
Rok za izgradnju 1 godina
Predivna lokacija za zivjeti, 5 min do centra grada. U blizini svi sadrzaji, javni prevoz, skola, vrtic, ambulanta, apoteka itd.
Orijentacija objekta jugo -zapad, osuncana strana cijeli dan.
Objekat se gradi po najnovijim i najmodernijim standardima. Betonska konstrukcija, termo izolacija, 7 komora stolarija i troslojno staklo, grijanje toplotna pumpa svaki stan ima svoju pumpu, klima uredzaj, vrhunska keramika, vrhunska kvalitetna sanitarija u kupatilu.
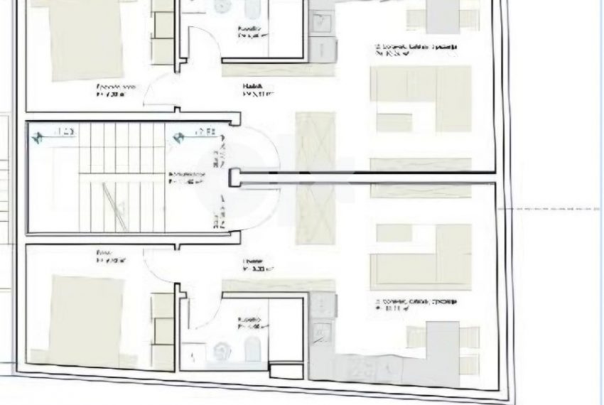
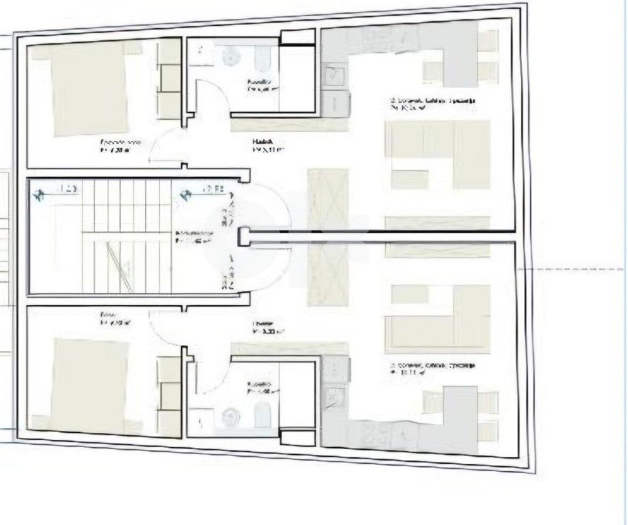
Jedan stan u prizemlju od 40 m2 sa terasom i bastom od 30 m2
I sprat 2 stana po 40 m2
Il sprat 2 stana po 40 m2
Potkrovlje l stan cc 50 m2
3 garaze i 3 vanjska parking mjesta.
Cijena po dogovoru.




